-
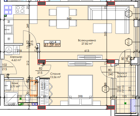
Застроена площ кв.м.
61.59 м2 -
Общи части от сграда КВ.М.
11.63 м2 -
-
Обща застроена площ кв.м.
73.22 м2
-
Етаж
2 -
секция
Ж -
Статус
Свободен - Имам интерес към следния апартамент - Ап.4, Секция , Етаж 2