-
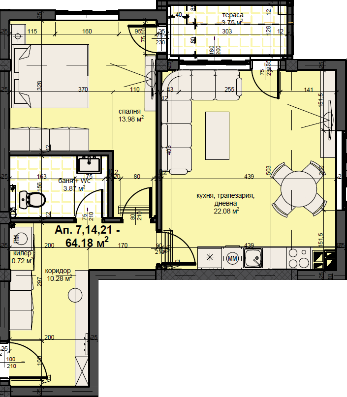
Застроена площ кв.м.
64.18 м2 -
Общи части от сграда КВ.М.
9.44 м2 -
-
Обща застроена площ кв.м.
73.62 м2
-
Етаж
2 -
секция
Блок К -
Статус
Свободен - Имам интерес към следния апартамент - Ап.7, Секция , Етаж 2