-
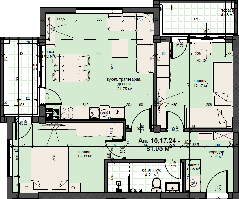
Застроена площ кв.м.
81.05 м2 -
Общи части от сграда КВ.М.
11.92 м2 -
-
Обща застроена площ кв.м.
92.97 м2
-
Етаж
2 -
секция
Блок К -
Статус
Свободен - Имам интерес към следния апартамент - Ап.10, Секция , Етаж 2