-
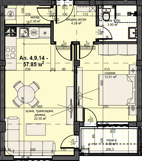
Застроена площ кв.м.
57.85 м2 -
Общи части от сграда КВ.М.
10.75 м2 -
-
Обща застроена площ кв.м.
68.60 м2
-
Етаж
2 -
секция
Блок Л -
Статус
Свободен - Имам интерес към следния апартамент - Ап.4, Секция , Етаж 2