-
Застроена площ кв.м.
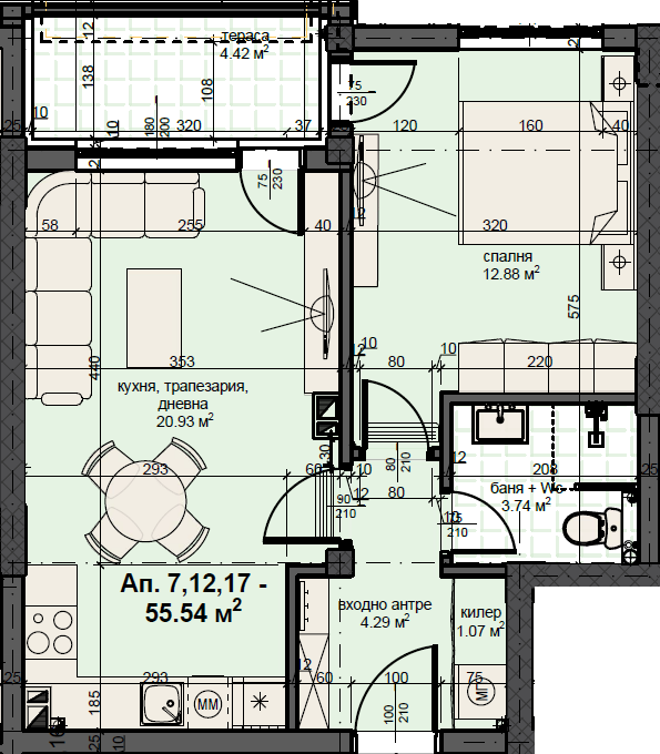
55.54 м2 -
Общи части от сграда КВ.М.
10.32 м2 -
-
Обща застроена площ кв.м.
65.86 м2
-
Етаж
2 -
секция
Блок Л -
Статус
Свободен - Имам интерес към следния апартамент - Ап.7, Секция , Етаж 2