-
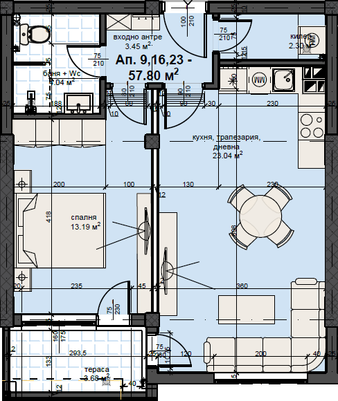
Застроена площ кв.м.
57.80 м2 -
Общи части от сграда КВ.М.
8.50 м2 -
-
Обща застроена площ кв.м.
66.30 м2
-
Етаж
4 -
секция
Блок Н -
Статус
Свободен - Имам интерес към следния апартамент - Ап.23, Секция , Етаж 4