-
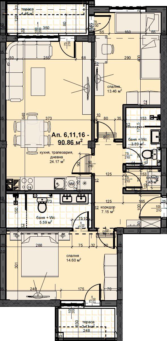
Застроена площ кв.м.
90.86 м2 -
Общи части от сграда КВ.М.
16.88 м2 -
-
Обща застроена площ кв.м.
107.74 м2
-
Етаж
4 -
секция
Блок П -
Статус
Свободен - Имам интерес към следния апартамент - Ап.16, Секция , Етаж 4