-
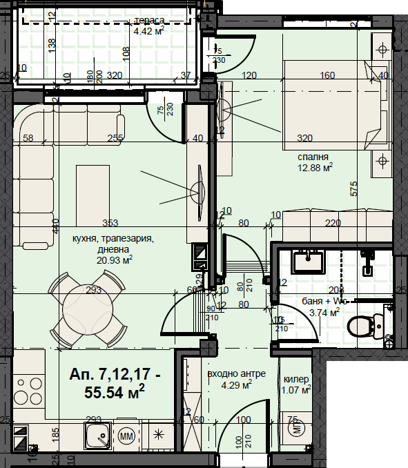
Застроена площ кв.м.
55.54 м2 -
Общи части от сграда КВ.М.
10.32 м2 -
-
Обща застроена площ кв.м.
65.86 м2
-
Етаж
4 -
секция
Блок П -
Статус
Свободен - Имам интерес към следния апартамент - Ап.17, Секция , Етаж 4