-
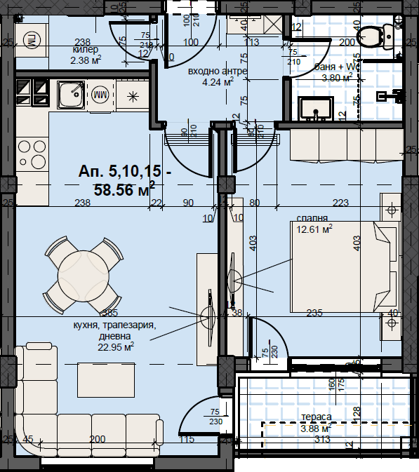
Застроена площ кв.м.
58.56 м2 -
Общи части от сграда КВ.М.
10.88 м2 -
-
Обща застроена площ кв.м.
69.44 м2
-
Етаж
3 -
секция
Блок Р -
Статус
Свободен - Имам интерес към следния апартамент - Ап.10, Секция , Етаж 3