-
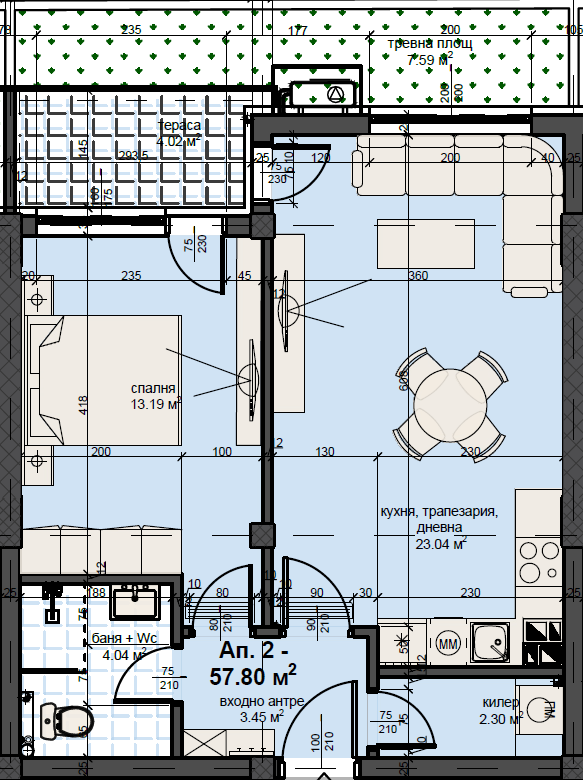
Застроена площ кв.м.
51.69 м2 -
Общи части от сграда КВ.М.
7.60 м2 -
-
Обща застроена площ кв.м.
59.29 м2
-
Етаж
1 -
секция
БЛОК К -
Статус
Свободен - Имам интерес към следния апартамент - Ап.2, Секция , Етаж 1