-
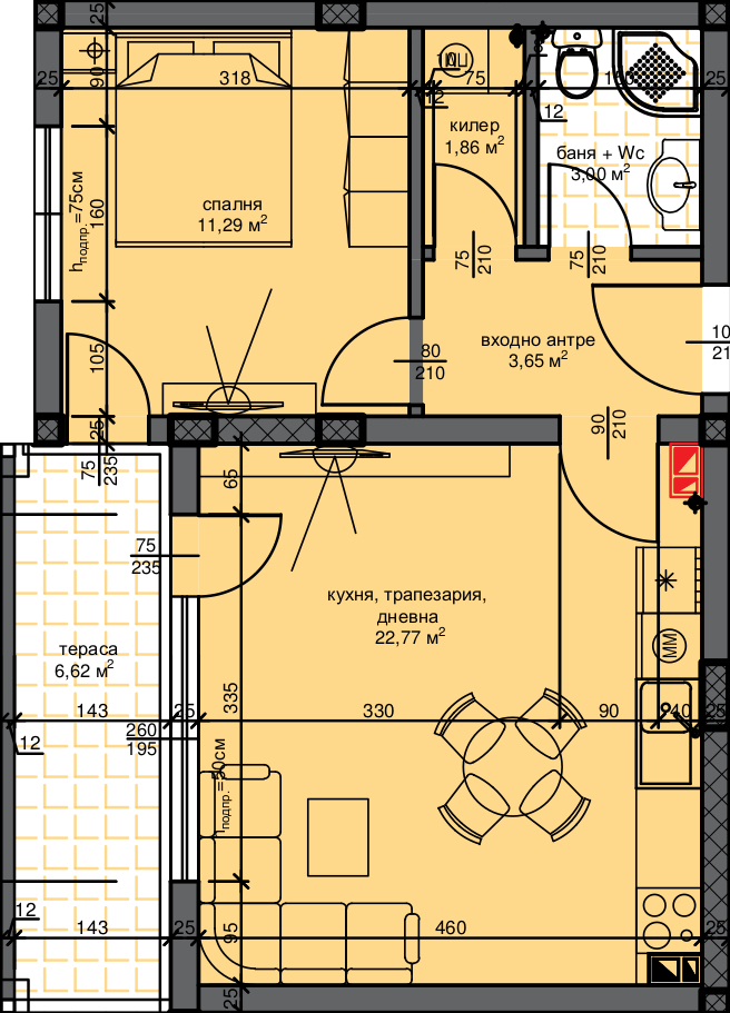
Застроена площ кв.м.
57.55 м2 -
Общи части от сграда КВ.М.
10.28 м2 -
-
Обща застроена площ кв.м.
67.83 м2
-
Етаж
||| -
секция
Б -
Статус
Свободен - Имам интерес към следния апартамент - Апартамент № 11, Секция , Етаж 3